+ (506) 8760-5632

VIA-03.

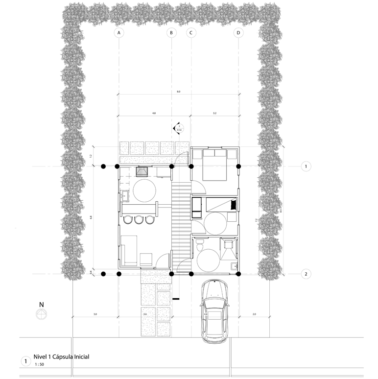
Casa Social Modular
VIA.03

El proyecto habitacional nace de la necesidad de tener un espacio en donde las personas puedan habitar digna y cómodamente en un espacio reducido con posibilidad de expansión a futuro, además se pretende dar la posibilidad de escogencia de estilo de cápsula sin afectar la imagen global de todas las cápsulas unidas en su trama urbana. Para esto se hace uso del block de concreto como material base, aprovechando su belleza innata, resaltándola con el uso de madera para dar un acento a ciertas áreas de la casa. Siendo esta una muy buena opción de vivienda, vinculando elementos de vital importancia, como lo son la comodidad y la economía.